First FULL MONTH FREE on 2-bedroom homes: choose up-front savings OR spread your savings over the lease term!*

WAIVED admin fee ($300)*

3% military discount*

*Restrictions apply. Must apply within 72 hours of initial visit and move in by 10/31/25 for rent concession. Must apply within 24 hours of initial visit for admin fee concession. Some offers cannot be combined. Minimum rents displayed may reflect a temporary incentive. Please contact the leasing office for more details.

Floor Plans

Ready to discover your perfect space? At The Westerly at Benn's Grant, we've got a variety of apartment homes designed with you in mind. Take your pick from our one, two, and three-bedroom options, each offering spacious layouts that make living easy and enjoyable. Whip up your favorite meals in your new,  modern kitchen with sleek stainless steel appliances and trendy shaker cabinets. Plus, say goodbye to laundry day hassles with full-size washers and dryers right in your home. Dive into our floor plans below and find the one that feels just right for you!
Available Floor plans meet your search criteria

Commodore - 1 Bedroom with Balcony

Beds: 1, Baths: 1, SQFT: 1,084

Income restrictions may apply to select homes.

Loading...

Commodore - 1 Bedroom with Patio

Beds: 1, Baths: 1, SQFT: 1,084

Income restrictions may apply to select homes.

Loading...
  • 1 Bedroom, 1 Bath, Balcony - 3D furnished with white cabinets
  • 1 Bedroom, 1 Bath, Balcony - 3D unfurnished with white cabinets
  • 1 Bedroom, 1 Bath, Balcony - 2D with dimensions

Compass - 1 Bedroom with Balcony

Beds: 1, Baths: 1, SQFT: 1,084

Loading...
Virtual Tour
  • 1 Bedroom, 1 Bath, Patio - 3D Furnished with white cabinets
  • 1 Bedroom, 1 Bath, Patio - 3D Unfurnished with white cabinets
  • 1 Bedroom, 1 Bath, Patio - 2D with dimensions with white cabinets

Compass - 1 Bedroom with Patio

Beds: 1, Baths: 1, SQFT: 1,084

Loading...
Virtual Tour

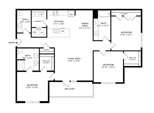
Harbor - 2 Bedroom with Balcony

Beds: 2, Baths: 2, SQFT: 1,326

Income restrictions may apply to select homes. Minimum rent displayed may reflect a temporary incentive. Please contact our leasing office for details.

Loading...

Harbor - 2 Bedroom with Patio

Beds: 2, Baths: 2, SQFT: 1,326

Income restrictions may apply to select homes. Minimum rent displayed may reflect a temporary incentive. Please contact our leasing office for details.

Loading...
  • 2 Bedroom, 2 Bath, Patio - 3D Furnished with dark cabinets
  • 2 Bedroom, 2 Bath, Patio - 3D Unfurnished with dark cabinets
  • 2 Bedroom, 2 Bath, Patio - 3D Furnished with white cabinets
  • 2 Bedroom, 2 Bath, Patio - 3D Unfurnished with white cabinets
  • 2 Bedroom, 2 Bath, Patio - 2D with dimensions

Belvedere - 2 Bedroom with Patio

Beds: 2, Baths: 2, SQFT: 1,326

Minimum rent displayed may reflect a temporary incentive. Please contact our leasing office for details.

Loading...
  • 2 Bedrooms, 2 Baths, Balcony - 3D Furnished with dark cabinets
  • 2 Bedrooms, 2 Baths, Balcony - 3D Unfurnished with dark cabinets
  • 2 Bedrooms, 2 Baths, Balcony - 3D Furnished with white cabinets
  • 2 Bedrooms, 2 Baths, Balcony - 3D Unfurnished with white cabinets
  • 2 Bedrooms, 2 Baths, Balcony - 2D with dimensions with white cabinets

Belvedere - 2 Bedroom with Balcony

Beds: 2, Baths: 2, SQFT: 1,326

Minimum rent displayed may reflect a temporary incentive. Please contact our leasing office for details.

Loading...
  • 2 Bedroom, 2 Bath, Patio - 3D Furnished with white cabinets
  • 2 Bedroom, 2 Bath, Patio - 3D Unfurnished with white cabinets
  • 2 Bedroom, 2 Bath, Patio - 3D Furnished with dark cabinets
  • 2 Bedroom, 2 Bath, Patio - 3D Unfurnished with dark cabinets
  • 2 Bedroom, 2 Bath, Patio  - 2D with dimensions

Beacon - 2 Bedroom with Patio

Beds: 2, Baths: 2, SQFT: 1,318

Minimum rent displayed may reflect a temporary incentive. Please contact our leasing office for details.

Loading...
Virtual Tour
  • 2 Bedrooms, 2 Baths, Balcony - 3D furnished with white cabinets
  • 2 Bedrooms, 2 Baths, Balcony - 3D unfurnished with white cabinets
  • 2 Bedrooms, 2 Baths, Balcony - 3D furnished with dark cabinets
  • 2 Bedrooms, 2 Baths, Balcony - 3D unfurnished with dark cabinets
  • 2 Bedrooms, 2 Baths, Balcony - 2D with dimensions

Beacon - 2 Bedroom with Balcony

Beds: 2, Baths: 2, SQFT: 1,318

Minimum rent displayed may reflect a temporary incentive. Please contact our leasing office for details.

Loading...
Virtual Tour
  • 3 Bedrooms, 2 Baths, Balcony - 3D furnished with white cabinets
  • 3 Bedrooms, 2 Baths, Balcony - 3D unfurnished with white cabinets
  • 3 Bedrooms, 2 Baths, Balcony - 2D with dimensions

Anchor - 3 Bedroom with Balcony

Beds: 3, Baths: 2.5, SQFT: 1,577

Loading...
  • 3 Bedroom, 2.5 Bath, Patio - 3D Furnished
  • 3 Bedroom, 2.5 Bath, Patio - 3D Unfurnished
  • 3 Bedroom, 2.5 Bath, Patio - 2D with dimensions

Anchor - 3 Bedroom with Patio

Beds: 3, Baths: 2.5, SQFT: 1,577

Loading...
Lock in your Quote!
Quote Details
Floor plan:
Unit:
Bedrooms:
Bathrooms:
Sqft:
Move-in date:
Lease Terms
Contact Information
 *
 *
 *
 *

* Required Fields


×

Inquiry sent successfully!

Back to Website
Full Screen
Rich Media Viewer by
3D
2D
Virtual Panoramic
Furniture Arranger
Floor plan images are only representations and actual floor plan layouts may differ slightly than pictured.
Close
Renderings are intended only as a general reference. Features, materials, finishes and layout of units may be different than shown. For more details, ask a leasing representative about specific apartment features.